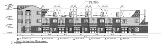
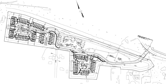
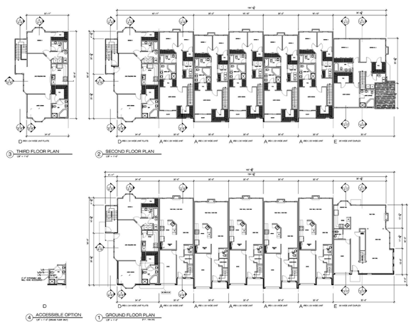
Hunting Meadow

Lincoln Park, New Jersey